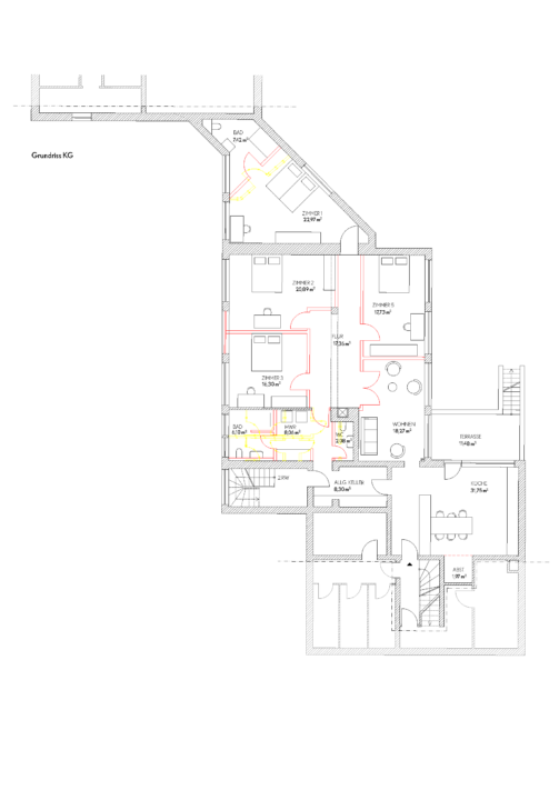
Next Previous Atmosphärische Räume Umnutzung eines Labors Aus den großzügigen Räumen einer ehemaligen Laboreinheit sollen neue Wohnungen entstehen.